Detailed Construction Drawings

Detailed construction drawings are the documents that turn a design into a buildable project. They communicate every dimension, material, junction, and specification to your builder, consultants, and certifier. At Dadirri Architects, our construction drawings and construction documentation are produced to a standard that prices cleanly, obtains permits efficiently, and reduces ambiguity on site.

Whether you are building a new home, renovating an existing one, or developing a multi-residential project in Melbourne, accurate detailed construction drawings are essential to cost certainty and build quality.

What Are Detailed Construction Drawings?

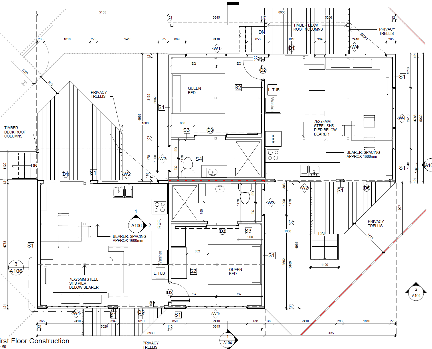
Detailed construction drawings are the technical documents that describe how a building is to be constructed. They include floor plans, sections, elevations, site plans, roof plans, and detail drawings at various scales. Together with a written specification and schedules, they form the construction documentation package used for building permits, tendering, and construction.

Good construction drawings reduce the need for builders to interpret or guess. Every building construction drawing in the set should communicate clearly, coordinate with engineering and services drawings, and reference the specification for materials and performance requirements.

Our Process

Step 1

Documentation Brief:

We confirm the scope of construction documentation required, including any outstanding design decisions.

Step 2

Drawing Production:

We produce the detailed construction drawings, working from approved design development drawings and coordinating with all consultants.

Step 4

Specification and Schedules:

We prepare a written specification and schedules that complement the construction drawings and provide builders with clear material and performance requirements.

Step 3

Consultant Coordination.:

We review and coordinate structural, services, energy, and landscape documentation to ensure consistency across the full package of construction drawings.

Step 5

Building Permit Lodgement:

We compile the building construction drawing package and lodge with your building surveyor for permit assessment, responding to any requests for further information.

Step 6

Tender Support:

We issue the construction documentation to builders for pricing, answer tender queries, and assist with tender evaluation.

When You Need Them

You need detailed construction drawings when your design is resolved and you are ready to obtain a building permit, when you are seeking competitive prices from builders through a tender process, when your project involves structural changes, services coordination, or complex junctions, or when you want to minimise variations, delays, and cost overruns during construction.

Even for simpler projects such as a straightforward house building drawing package, a well-documented set of construction drawings protects both you and your builder by establishing a clear record of what has been agreed.

What’s Included in the Service?

Our construction documentation typically includes fully dimensioned floor plans, sections, and elevations, site and roof plans, large-scale detail drawings for junctions, waterproofing, and flashings, door, window, and finishes schedules, a written architectural specification, coordination with structural, civil, energy, and services engineers, and a building permit package ready for lodgement with a building surveyor.

For house building drawing packages, we also include joinery details, kitchen and bathroom layouts, and external works plans where relevant.

Documents and Drawings Produced

A typical construction project drawing set from Dadirri Architects includes a site plan and demolition plan, floor plans at 1:50 or 1:100 scale, roof plan, building sections and cross-sections, all elevations, reflected ceiling plans, large-scale construction details (1:5, 1:10, 1:20) for critical junctions, door and window schedules with specifications, finishes schedule, kitchen, bathroom, and laundry joinery details, an architectural specification document, and a building permit submission package.

For larger or more complex projects, the construction documentation may also include a construction project drawing index, phasing plans, and coordination drawings.

Typical Timelines

For a typical residential project in Melbourne, construction documentation takes six to ten weeks to produce. The timeline depends on project complexity, the number of consultants involved, and the pace of decision-making on finishes and fitout selections.

Simpler projects (such as a single-storey house building drawing package) may be completed in four to six weeks. Larger multi-residential projects may take twelve weeks or more. We provide a clear programme at the outset.

 Frequently Asked Questions

  • Yes, the terms are used interchangeably. Detailed construction drawings are sometimes called working drawings, and both refer to the documentation used for building permits and construction.

  • Yes. Our construction documentation includes a written architectural specification that describes materials, performance standards, and workmanship requirements.

  • Yes. We can produce detailed construction drawings for designs developed by other architects or designers, provided the design is sufficiently resolved.

  • Our detailed construction drawings form part of the building permit application. We coordinate with structural and services engineers so the full construction documentation package is consistent and ready for assessment.

  • All major design, material, and fitout decisions should be confirmed before construction documentation begins. We guide you through what needs to be resolved and when.

Schedule a Consultation

If your design is ready for documentation, or you need detailed construction drawings for a project in Melbourne, get in touch. We will discuss your scope, timeline, and how our construction documentation service can deliver a build-ready package.