Landscape & Site Works

A home does not end at the building envelope. The landscape, outdoor spaces, and site works are essential to how you experience your property. At Dadirri Architects, our landscape design service ensures that outdoor areas are planned alongside the architecture, creating a seamless connection between inside and outside. We coordinate planting plans, hardscape design, fencing, drainage, and external works so your site is considered as a whole.

For Melbourne homes, where outdoor living is central to the lifestyle, thoughtful landscape design adds comfort, privacy, and value.

What Is Landscape Design in an Architectural Context?

Landscape design within an architectural practice addresses the outdoor spaces, ground plane, and external infrastructure that surround your building. Unlike standalone landscape design, our approach plans outdoor spaces as an extension of the architecture from the earliest design stages.

This means landscape design decisions about levels, drainage, planting, and materials are coordinated with the building design rather than resolved after the house is complete. The result is outdoor spaces that feel intentional and connected to the architecture.

When You Need Landscape Design and Site Works

Our landscape design and site works service is relevant when you are building a new home and want outdoor spaces planned alongside the architecture, you are renovating and the existing landscape needs to be reconfigured, your site requires earthworks, retaining walls, or drainage solutions, you need planting plans that respond to Melbourne’s climate and water restrictions, your planning permit requires a landscape plan, or you want hardscape design for paving, decking, fencing, and outdoor structures.

What Our Landscape Design Service Covers

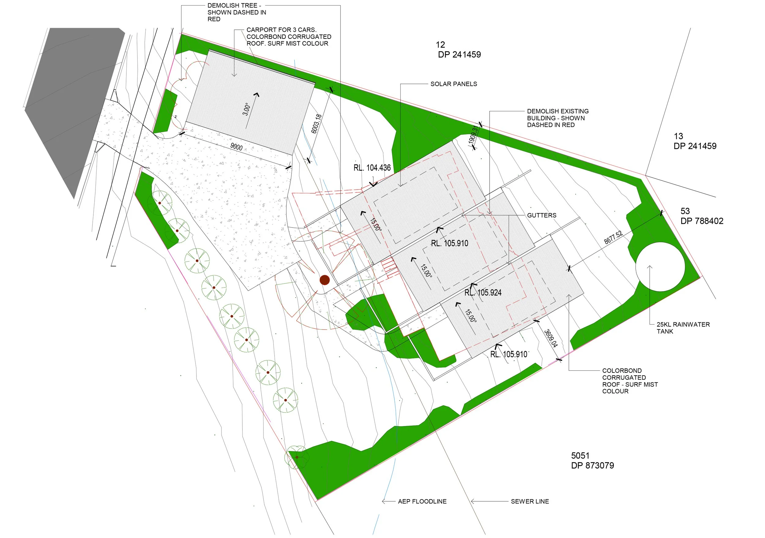
Our landscape design and site works service includes site analysis and master planning for outdoor spaces, planting plans that respond to Melbourne’s climate, soil, and water availability, hardscape design including paving, decking, retaining walls, steps, and edging, fencing, screening, and boundary treatments, external works including drainage, stormwater management, and service connections, outdoor structures such as pergolas, garden rooms, and carports, irrigation and external lighting coordination, and coordination with landscape contractors and nurseries.

We work with specialist landscape architects on complex projects and manage the full landscape design scope for simpler residential sites.

Documents and Drawings Produced

Our landscape design deliverables include a landscape master plan showing zones, circulation, and planting areas, planting plans with species schedules, quantities, and sizes, hardscape design drawings with material specifications and levels, site works plans including earthworks, retaining walls, and drainage, external lighting layout, fencing and boundary treatment details, and irrigation plans where required.

For planning permit submissions, we produce landscape plans that satisfy council requirements and support the overall design response.

How Landscape Design Connects to Architecture

We plan landscape design alongside the architecture from the earliest stages. This integrated approach allows us to align indoor and outdoor floor levels for seamless transitions, position trees and planting plans for privacy, shade, and wind protection, design external works and drainage that coordinates with civil engineering, and create outdoor spaces that extend your living area.

Landscape design decisions made during schematic design are far more effective than those applied after the building is resolved. Early planning avoids costly rework and ensures the site works and external works support the architecture.

Planting and Material Selection

Plant selection for Melbourne homes must account for seasonal variation, water restrictions, soil type, and maintenance requirements. We specify plants that are appropriate for your site’s orientation, exposure, and soil conditions, with a preference for indigenous and drought-tolerant species where possible.

Hardscape design materials are selected for durability, aesthetics, and compatibility with the architectural palette. Our landscape design considers how materials weather and age, ensuring outdoor surfaces remain attractive and safe over time. Hardscape design for Melbourne conditions means selecting materials that handle frost, heat, and seasonal moisture without excessive maintenance.

Site Works and External Infrastructure

Site works encompass everything outside the building footprint that is required for the project to function. This includes earthworks and retaining walls, crossovers, driveways, and vehicle access, stormwater detention and drainage systems, boundary fencing and gates, letterboxes, bin stores, and service connections, and external lighting and power.

We coordinate site works and external works with your builder, civil engineer, and council requirements to ensure all external infrastructure is resolved before construction begins.

Typical Timelines

Landscape design runs concurrently with the architectural design. Initial landscape design concepts are developed during schematic design (four to eight weeks). Detailed planting plans and hardscape design are resolved during design development and documentation (six to ten weeks). Site works and external works coordination occurs during documentation (four to six weeks).

For planning permit submissions, landscape plans are typically required at the town planning application stage and take two to four weeks to prepare alongside other application requirements.

 Frequently Asked Questions

  • We include landscape design as part of our full architectural service. For projects where we are not the architect, we can provide landscape design as a standalone service.

  • Yes. For complex landscape design, we work with specialist landscape architects and manage the coordination between their design and the architectural documentation.

  • We assess existing vegetation as part of the site analysis and design around significant trees where required by planning controls or where retention adds value to the landscape design.

  • Landscape plans are often a required component of town planning applications. We prepare landscape plans and planting plans that satisfy council requirements.

  • Yes. Site works and external works are coordinated with the builder as part of the construction documentation package.


Discuss Your Landscape

If you are planning a new home or renovation in Melbourne and want outdoor spaces that are as considered as the interiors, get in touch. Our landscape design service ensures your site works, planting plans, and hardscape design are integrated with the architecture from day one.