Rear garden render of a Dadirri Architects residential project showing the relationship between indoor living spaces and landscape
Planning | Victoria | Residential

The Planning Permit Process in Victoria

When you need a planning permit, how to apply, what to expect, and how an architect helps you navigate the process.

By Dadirri Architects April 2026 14 min read

Key takeaways

  • Whether a planning permit is required depends on three things: the zone, any overlays on the property, and the nature of the proposed works [1]
  • Recent Victorian reforms (2025-2026) have removed planning permit requirements for many single dwelling extensions on lots of 300 m² or more, but overlays (especially Heritage) still trigger a permit [2]
  • The statutory decision timeframe is 60 days, but the real-world average for Melbourne residential applications is closer to five months, and complex or contested applications can take much longer
  • Clause 55 (the Townhouse and Low-Rise Code) now includes a Deemed to Comply pathway that fast-tracks compliant multi-dwelling developments and removes third-party appeal rights [3]
  • An architect's involvement in the planning stage adds value well beyond preparing drawings: risk assessment, design strategy, council negotiation, and objection management all reduce the chance of refusal or delay
  • Pre-application meetings with council are one of the most effective (and underused) tools for reducing planning risk

When is a planning permit required?

For homeowners considering a planning permit in Melbourne, the question of whether one is actually required comes down to three factors: the zone your property sits within, the overlays that apply to it, and the nature of the proposed works [1]. All three must be considered together. A project that is exempt in one zone may require a full permit in another, and an overlay can override a zone exemption entirely.

The zone and overlay framework

Every property in Victoria is assigned a zone under the relevant planning scheme. Residential properties typically fall within the General Residential Zone (GRZ), Neighbourhood Residential Zone (NRZ), or Residential Growth Zone (RGZ). Each zone has different requirements for what triggers a planning permit. On top of the zone, one or more overlays may apply. Overlays add additional controls that respond to specific site characteristics such as heritage significance, vegetation, flooding, or design sensitivity.

The most common overlays affecting residential properties in Melbourne include the Heritage Overlay (HO), Neighbourhood Character Overlay (NCO), Design and Development Overlay (DDO), Significant Landscape Overlay (SLO), Vegetation Protection Overlay (VPO), and Environmental Significance Overlay (ESO). Each of these can independently trigger a planning permit requirement, even if the zone itself would not.

Single dwelling exemptions under Amendment VC282

In a significant reform introduced in 2025-2026, Amendment VC282 removed the planning permit requirement for many single dwelling extensions and alterations. If your property is in the GRZ, NRZ, or Township Zone, is 300 m² or larger, and no triggering overlay applies, you can generally extend or alter a single dwelling without a planning permit [2]. The works still need to comply with the building regulations, but the planning permit step is removed.

This is a meaningful change for homeowners planning straightforward extensions. However, the exemption does not apply in several important circumstances. Properties affected by a Heritage Overlay, NCO, DDO, or SLO still require a planning permit regardless of lot size. Properties smaller than 300 m² are also excluded from the exemption.

Two or more dwellings

Any development proposing two or more dwellings on a single lot always requires a planning permit in Victoria. This includes dual occupancies, townhouse developments, and apartment buildings. There is no zone-based exemption for multi-dwelling proposals. These applications are assessed under Clause 55 (for developments up to four storeys) or Clause 58 (for apartments of five or more storeys) [1].

Always check before you assume

A free Planning Property Report from planning.vic.gov.au shows the zone and overlays affecting your property. Combined with a Certificate of Title from Landata, these two documents form the essential first step before any design work begins. Do not rely on verbal advice or assumptions about what applies to your site. For a quick overview of what applies to your property, see our Victorian Planning Snapshot service.

The application process step by step

The planning permit application process in Victoria follows a structured sequence from initial due diligence through to permit issue. While every application is different, the core steps remain consistent. Understanding this sequence helps set realistic expectations for timing and effort.

Applications are lodged electronically through the SPEAR (Streamlined Planning through Electronic Applications and Referrals) system, which is the standard platform used by all Victorian councils. Paper applications are no longer accepted by most councils.

Step Description Typical timeframe
1. Due diligence Obtain Planning Property Report, Certificate of Title, and review all controls 1 to 2 weeks
2. Pre-application meeting Meet with council planning officer to discuss the proposal and identify issues 2 to 4 weeks (booking lead time)
3. Design development Prepare plans responding to all relevant planning controls and pre-application feedback 4 to 8 weeks
4. Specialist reports Commission arborist, heritage, traffic, or other specialist reports as required 2 to 4 weeks (concurrent with design)
5. Lodgement Submit application via SPEAR with all plans, reports, and design response 1 week
6. Preliminary assessment Council checks application completeness and may request further information 2 to 4 weeks
7. Referrals Council refers application to relevant authorities (water, transport, heritage) 2 to 6 weeks
8. Public notification Application advertised to neighbours; notice placed on site 2 to 3 weeks
9. Objections Objectors lodge submissions; applicant may respond or attend mediation 2 to 4 weeks
10. Assessment and decision Council planner prepares assessment report and issues decision (NOD or refusal) 2 to 8 weeks
11. Appeal period 21-day period for objectors or applicant to lodge VCAT appeal 3 weeks
12. Permit issued If no appeal, permit is issued with conditions 1 to 2 weeks

The further information request at Step 6 is one of the most common causes of delay. Council has the right to pause the statutory clock while waiting for the applicant to respond. A thorough, well-prepared initial submission significantly reduces the likelihood of further information requests and keeps the process moving.

Timelines: what the law says vs what actually happens

The Planning and Environment Act 1987 sets a statutory decision period of 60 statutory days for a responsible authority (council) to decide on a planning permit application [1]. This sounds reasonable. In practice, the picture is very different.

The 60-day clock can be suspended for several reasons: when council requests further information, during the public notification period, or when awaiting responses from referral authorities. These suspensions mean the statutory clock often bears little relationship to the actual calendar time an application takes.

Real-world timeframes

Across metropolitan Melbourne, the average time from lodgement to decision for residential planning permit applications is approximately 155 calendar days, or roughly five months. This figure accounts for suspensions and is a median across all application types and municipalities.

Applications in inner Melbourne municipalities with Heritage Overlays routinely take six to nine months or longer. Sites with multiple overlays, significant neighbourhood opposition, or complex design responses can extend well beyond this. Applications that proceed to a council planning committee meeting (rather than being decided under delegation) add further time.

If an application is refused or if objectors appeal a council decision to grant a permit, the matter proceeds to the Victorian Civil and Administrative Tribunal (VCAT) [4]. A VCAT hearing typically adds a further six to eighteen months to the timeline, depending on the complexity of the case and the Tribunal's caseload.

The total time from project inception (first engagement with an architect) to having a planning permit in hand is typically nine to eighteen months for a standard residential project. Complex projects with contested heritage or neighbourhood character issues can take longer.

The statutory decision period is 60 days, but the real-world average across Melbourne is closer to five months.

Clause 55 and the Townhouse and Low-Rise Code

Clause 55 of the Victoria Planning Provisions applies to residential developments of two or more dwellings on a lot, and to residential buildings up to four storeys in height. It has long been the primary assessment tool for medium-density housing in Victoria.

Amendment VC267 and the new code

In March 2025, Amendment VC267 introduced the Townhouse and Low-Rise Code, a comprehensive rewrite of Clause 55 [3]. The new code modernises the assessment framework and introduces a significant new pathway: Deemed to Comply.

Under the Deemed to Comply pathway, a development that meets every applicable standard in the code is assessed on a fast-track basis. The key change is that Deemed to Comply applications are not subject to third-party notice and review rights. This means neighbours cannot object to the application, and no VCAT appeal is available to third parties. The application is assessed by council against the standards only, and if it complies, a permit must be issued.

Third-party appeal rights removed for compliant developments

Under the Deemed to Comply pathway, if a multi-dwelling development meets all Clause 55 standards, third parties (including neighbours) cannot object or appeal to VCAT. This is a deliberate policy shift to provide certainty for compliant developments. Projects that do not meet all standards are assessed under the standard pathway, where full notification and appeal rights remain.

Key standards to understand

The Townhouse and Low-Rise Code sets out quantitative standards for a range of design outcomes. Some of the most important for homeowners considering a dual occupancy or townhouse project include:

  • Front setback: 6 metres minimum (or the average of adjoining properties, whichever is lesser)
  • Site coverage: 65% maximum in the General Residential Zone
  • Canopy tree requirement: 10% of the site area must be capable of supporting canopy tree planting
  • Building height: varies by zone, typically 9 to 11 metres for residential zones
  • Overlooking: habitable room windows within 9 metres of neighbouring secluded private open space must be screened
  • Overshadowing: neighbouring secluded private open space must receive a minimum of 5 hours of sunlight between 9 am and 3 pm at the September equinox

VicSmart eligibility

Developments that meet all Deemed to Comply standards may also be eligible for assessment under the VicSmart process, which targets a decision within 10 business days. This is a significant reduction from the standard assessment timeline and provides a genuine fast-track for well-designed, compliant developments [2].

For homeowners planning a dual occupancy or small townhouse project, the Deemed to Comply pathway represents a real opportunity to reduce both timeline and risk. The trade-off is that the design must meet every standard. An architect experienced in multi-dwelling design can advise early whether a compliant outcome is achievable on a given site, or whether a standard permit pathway with more design flexibility is the better strategy.

Street elevation render of a Dadirri Architects residential project showing facade design and streetscape integration Street elevation render showing how a new dwelling responds to existing neighbourhood character and planning setback requirements.

Common reasons planning permits are refused

Understanding why planning permits are refused is one of the most practical things a homeowner can do before starting the design process. Most refusals are preventable with proper design, documentation, and early engagement with council.

The most common reasons for refusal of residential planning permit applications in Victoria include:

  1. Neighbourhood character incompatibility. This is the most frequently cited reason. The proposed development does not respond adequately to the prevailing character of the streetscape or surrounding area in terms of form, scale, materials, or siting.
  2. Excessive height or building bulk. The proposal presents a building mass that is out of scale with surrounding development, creating visual dominance or an overbearing presence on neighbouring properties.
  3. Overlooking and privacy impacts. Habitable room windows or elevated outdoor spaces create unreasonable views into neighbouring secluded private open space or habitable room windows, and the design does not include adequate screening or design responses.
  4. Overshadowing. The proposal causes unreasonable overshadowing of neighbouring secluded private open space, particularly during the key assessment period (9 am to 3 pm at the September equinox).
  5. Inadequate setbacks. Side, rear, or front setbacks do not meet the relevant standards, and no design justification is provided for the variation.
  6. Heritage impact. For properties within a Heritage Overlay, the proposed works are inconsistent with the heritage significance of the place or precinct. Common issues include demolition of significant fabric, inappropriate additions visible from the street, or materials and forms that do not respond to the heritage context [7].
  7. Traffic and parking. The proposal does not provide adequate car parking, or the traffic generated by the development would have an unreasonable impact on the local road network or residential amenity.
  8. Inadequate landscaping. The proposal does not provide sufficient space for meaningful landscaping, canopy tree planting, or permeable surfaces, particularly in the context of the new 10% canopy tree requirement under the Townhouse and Low-Rise Code.
  9. Poor internal amenity. Proposed dwellings do not achieve adequate daylight, ventilation, private open space, or storage for future occupants.
  10. Inadequate design response documentation. The application does not include a thorough written response to the relevant planning controls, leaving the council planner without sufficient justification for design decisions. This is a procedural issue, but it leads to refusals just as readily as a genuine design problem.
Most refusals are preventable

The majority of planning permit refusals result from issues that could have been identified and addressed during the design stage. Early due diligence, a pre-application meeting, and a design that genuinely responds to the planning controls are the most effective ways to avoid refusal.

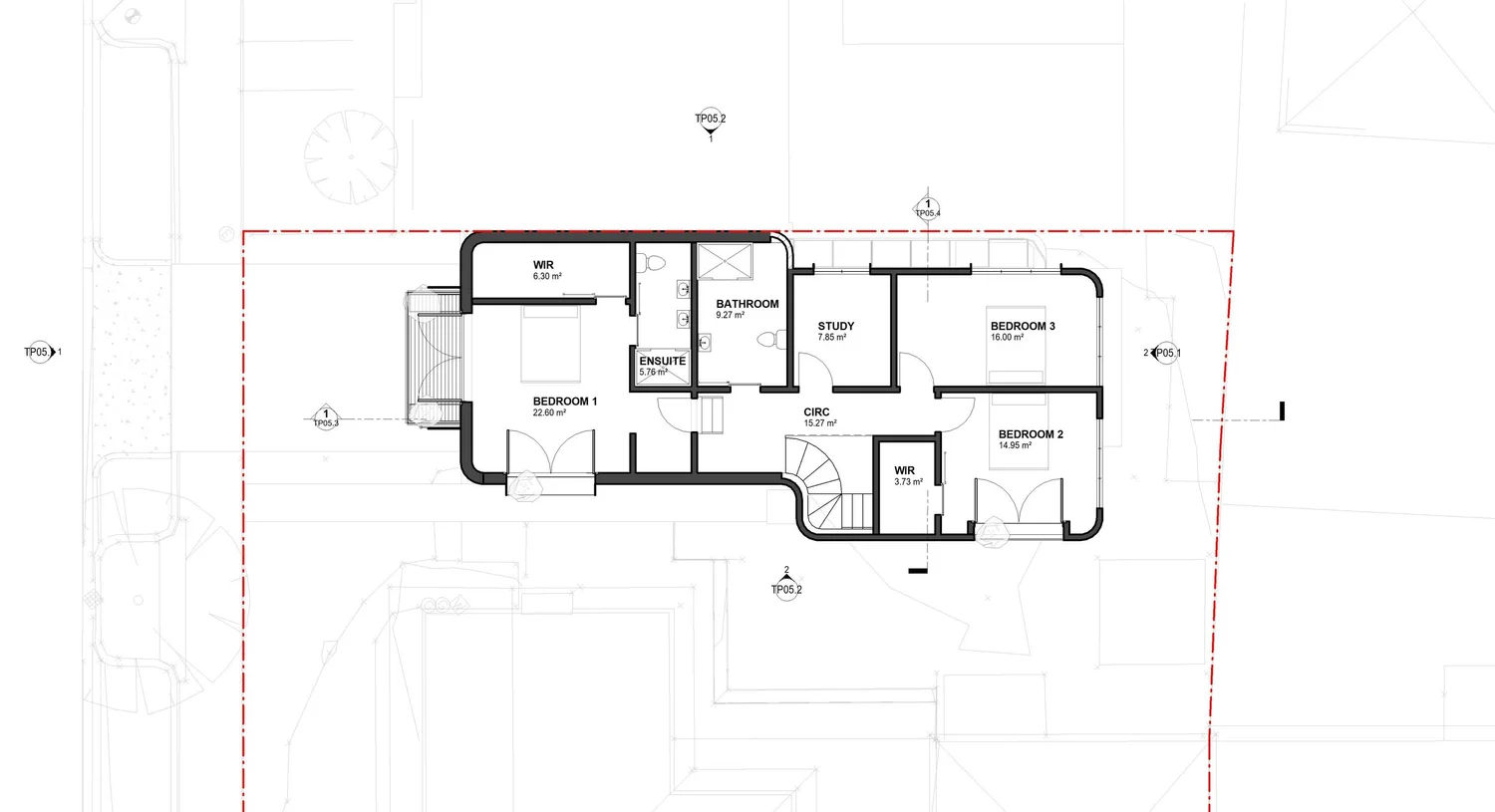
Upper floor plan by Dadirri Architects showing room layout, setbacks, and window positions considered during planning assessment Upper floor plan showing setback dimensions and window positions, both of which are closely assessed during the planning permit process.

What a planning permit costs

The cost of obtaining a planning permit involves several components: the council application fee, professional fees for design and documentation, and specialist consultant reports. Understanding each component helps with realistic budgeting.

Council application fees

Planning permit application fees in Victoria are set state-wide under the Planning and Environment (Fees) Regulations 2016 and are not determined by individual councils [5]. The fee is calculated based on the estimated cost of development.

Cost component Typical range Notes
Council application fee (construction $200k to $500k) $1,350 to $1,760 Set by state regulations, not council
Council application fee (construction $500k to $1M) $1,760 to $3,500 Higher fees for larger projects
Metropolitan Planning Levy 0.25% of construction cost Applies to projects over $1,311,000
Architect fees (planning stage) $8,000 to $25,000 Varies with project complexity and site constraints
Arborist report $1,500 to $3,000 Required where trees may be affected
Heritage impact statement $3,000 to $8,000 Required for Heritage Overlay properties
Traffic and parking report $2,000 to $5,000 Multi-dwelling or reduced parking proposals
Town planning consultant report $2,000 to $5,000 Independent planning assessment if needed
VCAT appeal (if required) $5,000 to $30,000+ Legal and expert witness costs; highly variable

Architect fees for the planning stage typically cover site analysis, design development to planning permit level, preparation of a design response statement, shadow diagrams, and application management. For a standard residential project (single dwelling extension or dual occupancy), fees generally fall between $8,000 and $25,000. Complex projects with heritage, multiple overlays, or significant neighbourhood sensitivity sit at the higher end or above this range.

For a comprehensive breakdown of architectural fees across all project stages, see the companion guide: What Does an Architect Cost in Melbourne?

The role of an architect in the planning permit process

An architect's contribution to the planning permit process extends well beyond producing drawings. The value lies in a combination of design expertise, planning knowledge, and project management that reduces risk and improves outcomes at every stage.

Due diligence and risk assessment

Before any design work begins, an architect reviews the Certificate of Title, Planning Property Report, and all applicable planning controls. This due diligence identifies the constraints and opportunities specific to the site, flags potential issues (such as restrictive covenants, easements, or complex overlay combinations), and establishes a clear understanding of what is achievable.

Pre-application strategy

An experienced architect knows when and how to engage with council before lodging an application. This includes preparing concept-level plans for a pre-application meeting, framing the discussion around key planning issues, and using the meeting to test the council's likely response to design decisions.

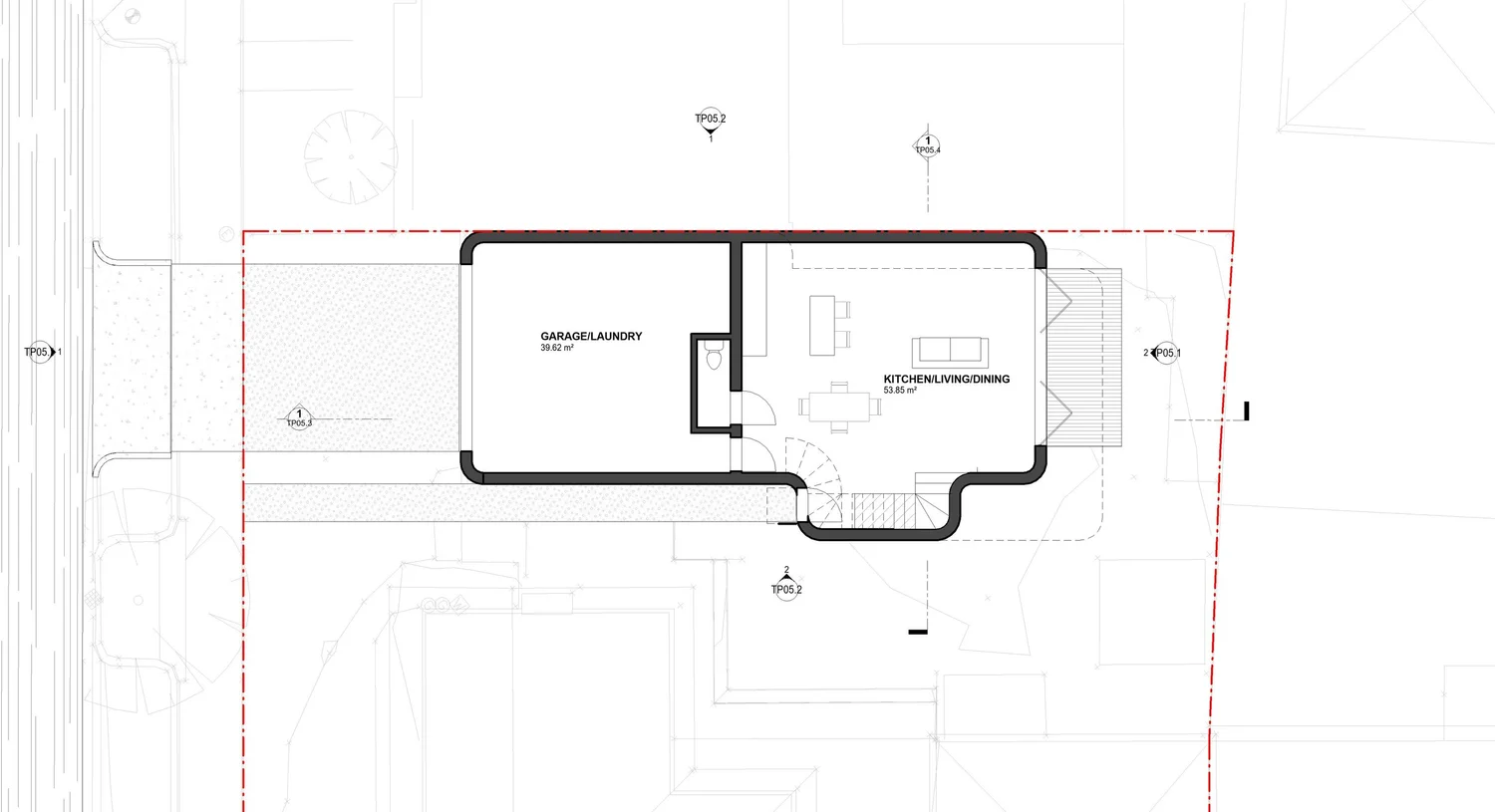
Ground floor plan by Dadirri Architects showing spatial layout and site planning for a residential planning permit application Ground floor plan demonstrating how architectural design responds to site constraints and planning requirements.

Design development responding to planning controls

The design stage of a planning application is where an architect's skill has the greatest impact. Rather than designing a building and then checking it against the planning controls, a skilled architect works with the controls from the outset. Setbacks, height limits, overlooking distances, overshadowing requirements, and neighbourhood character all inform the design from the first sketch. This integrated approach produces buildings that are both well-designed and genuinely responsive to their planning context.

Documentation and technical drawings

A planning permit application requires a specific set of documents: site plans, floor plans, elevations, sections, shadow diagrams, a site context plan, and a written design response or planning report. The quality and completeness of these documents directly affects the speed and outcome of the assessment. An architect produces documentation that anticipates the council planner's questions and provides clear, professional answers [6].

Coordination and application management

An architect coordinates specialist consultants (arborists, heritage consultants, traffic engineers, surveyors), manages the SPEAR lodgement process, responds to further information requests, and negotiates with the council planner on design matters. If objections are received, the architect can prepare a written response or attend a council-facilitated mediation meeting. If the application proceeds to VCAT, the architect provides expert evidence and works with legal counsel to present the design case.

For more detail on how architectural services are structured across a full project, see Dadirri Architects' schematic and concept design services.

Pre-application meetings with council are one of the most effective tools for reducing planning risk, and one of the most underused.

Pre-application meetings: your most underused tool

A pre-application meeting is an informal discussion with a council planning officer before a planning permit application is lodged. It is not a formal assessment and the officer cannot bind council to a decision. But it is one of the most valuable steps in the entire planning process, and it is consistently underused by applicants.

What they are and why they matter

Most Melbourne councils offer pre-application meetings, either free of charge or for a fee typically ranging from $300 to $500. The purpose is to give the applicant an opportunity to present early-stage plans and receive informal feedback from the planner who is likely to assess the application. This feedback can cover the appropriateness of the proposal in principle, specific design issues the planner would expect to see addressed, likely conditions that would be placed on any permit, and potential objection risks from neighbours.

What to bring

To get the most from a pre-application meeting, bring the following:

  • Certificate of Title and Planning Property Report
  • Concept plans showing floor layouts, elevations, and site plan at a minimum
  • Any specialist reports already obtained (arborist, heritage)
  • A brief written summary of the proposal, including the number of dwellings, building height, and car parking provision
  • Photos of the site and surrounding properties

Managing expectations

The council officer cannot approve or refuse a proposal at a pre-application meeting. Their feedback is informal and does not bind the responsible authority. However, the insights gained are extremely valuable. A planner who flags a concern about building height at a pre-application meeting is very likely to raise the same concern during formal assessment. Addressing it before lodgement saves months of back-and-forth.

Talk to your neighbours first

Before the pre-application meeting, consider speaking informally with immediately adjoining neighbours about the general nature of the proposal. This is not a requirement, but it serves two purposes: it builds goodwill that can reduce the likelihood of objections later, and it may surface concerns that can be addressed in the design before the council meeting. Being able to tell the planning officer that neighbours have been consulted demonstrates a collaborative approach that council officers respond to positively.

Aerial perspective render of a Dadirri Architects residential project showing the building in its neighbourhood context Aerial view showing how a proposed development sits within its broader neighbourhood context, a key consideration in planning assessment.

Frequently asked questions

Do I need a planning permit to build a house extension in Melbourne?

It depends on the zone, overlays, and scope of work. Since the 2025 reforms under Amendment VC282, many single dwelling extensions on lots of 300 m² or more in the General Residential Zone, Neighbourhood Residential Zone, or Township Zone no longer require a planning permit, provided no triggering overlay (such as Heritage) applies. Always check with a Planning Property Report before assuming an exemption applies to your site.

How long does the planning permit process take in Victoria?

The statutory decision period is 60 days, but the real-world average across Melbourne is closer to five months (approximately 155 calendar days). Complex applications involving Heritage Overlays or significant objections can take six to nine months or longer. If appealed to VCAT, add a further six to eighteen months. From inception to permit in hand, a typical residential project takes nine to eighteen months.

What is Clause 55 and does it apply to my project?

Clause 55, now known as the Townhouse and Low-Rise Code following Amendment VC267 in March 2025, applies to developments of two or more dwellings on a single lot. It sets standards for site layout, building height, setbacks, overlooking, overshadowing, and landscaping. If your project involves a dual occupancy, townhouse, or multi-dwelling development of up to four storeys, Clause 55 almost certainly applies.

Can I object to a neighbour's planning permit application?

Yes, if the application is advertised (most multi-dwelling applications are), any person may lodge an objection during the advertising period. Objections must relate to planning grounds, not personal grievances. However, under the new Deemed to Comply pathway for Clause 55 applications that meet all standards, third-party objection and VCAT appeal rights have been removed.

What happens if my planning permit application is refused?

If council refuses your application, you have the right to appeal to the Victorian Civil and Administrative Tribunal (VCAT) within 60 days of the decision. VCAT conducts a fresh hearing (a merits review) and can overturn council's decision. Alternatively, you can revise the plans and submit a new application addressing the reasons for refusal. Many successful projects have been through one or more revisions before obtaining a permit.

Do I need an architect for a planning permit application?

There is no legal requirement to engage an architect for a planning permit application. However, an architect's expertise in design, planning controls, and council negotiation significantly improves the likelihood of approval, particularly for complex sites, heritage properties, or multi-dwelling projects. An architect also prepares the design response statement and shadow diagrams that form part of a strong application.

How much does a planning permit cost in Victoria?

Council application fees for typical residential projects range from approximately $1,350 to $1,760, set state-wide under the Planning and Environment (Fees) Regulations 2016. Professional fees for an architect to prepare the planning application typically range from $8,000 to $25,000 depending on project complexity. Specialist reports such as arborist assessments ($1,500 to $3,000) or heritage impact statements ($3,000 to $8,000) add further costs.

What is a pre-application meeting and should I request one?

A pre-application meeting is an informal discussion with a council planning officer before lodging your application. Most Melbourne councils offer them, some free of charge and some for a fee of $300 to $500. They are one of the most effective tools for identifying potential issues early, understanding council expectations, and reducing the risk of delays or refusal. Requesting one is strongly recommended for any project that is not straightforward.

References

  1. Planning and Environment Act 1987 (Vic), legislation.vic.gov.au
  2. Department of Transport and Planning, "Residential Development Guides", planning.vic.gov.au, accessed April 2026
  3. Department of Transport and Planning, "Townhouse and Low-Rise Code", planning.vic.gov.au, 2025
  4. Victorian Civil and Administrative Tribunal, "Planning Disputes", vcat.vic.gov.au, accessed April 2026
  5. Planning and Environment (Fees) Regulations 2016, as amended
  6. Architects Registration Board of Victoria (ARBV), arbv.vic.gov.au, accessed April 2026
  7. Heritage Council of Victoria, heritage.vic.gov.au, accessed April 2026

Ready to talk about your project?

Every project starts with a conversation. If you are thinking about building or renovating in Melbourne, we would welcome the chance to discuss your ideas and give you a realistic picture of what the planning process involves for your site.

Book a free initial consultation

Want this guide as a PDF?

Get in touch and we will send you a beautifully formatted PDF version of this guide, perfect for sharing with your partner or keeping on hand as you plan your project.

Get in touch